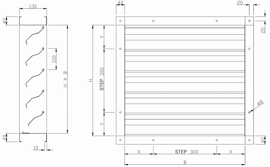
Duct overpressure dampers with a 100 mm pitch, with a 1 mm thick galvanised steel frame and 0.7 mm thick aluminium blades.
Material: galvanised steel / aluminium.
Finish: galvanised steel frame and natural anodised aluminium blades.
Installation: fastening by means of visible screws.
Blade pitch 100 mm.
Nylon bushings and pins.
Longitudinal adhesive seal on the blades.
Installed on ducts, it allows for the passage of air in one direction only.
It eliminates any dispersion or entry of air when the system is switched off.
Aluminium damper.
With bird mesh.
simultaneous blades.
V: speed referring to the cross-section (B-25)x(H-25) [m/s]
Pa: total pressure drop [Pa]
Maximum speed recommended 6 m/s
| V (m/s) | Pa |
| 1 | 12 |
| 2 | 18 |
| 3 | 23 |
| 4 | 28 |
| 5 | 34 |
| 6 | 48 |
Note: with bird mesh + 30%
B: base
H: height
all dimensions are expressed in mm
| H | B | ||||||||
| 300 | 400 | 600 | 800 | 1000 | 1200 | 1400 | 1600 | 1800 | |
| euro | euro | euro | euro | euro | euro | euro | euro | euro | |
| 210 | 90,55 | 101,45 | 123,20 | 145,30 | 167,10 | 188,86 | 251,09 | 271,33 | 291,23 |
| 310 | 107,36 | 119,16 | 142,50 | 166,49 | 190,44 | 214,10 | 290,32 | 313,03 | 335,75 |
| 410 | 123,83 | 136,29 | 161,82 | 187,63 | 213,49 | 239,28 | 329,51 | 355,02 | 380,24 |
| 510 | 140,65 | 154,01 | 181,09 | 208,79 | 236,80 | 264,48 | 368,72 | 396,72 | 424,43 |
| 610 | 157,44 | 171,46 | 200,39 | 230,25 | 259,81 | 289,71 | 407,91 | 438,72 | 468,91 |
| 810 | 190,44 | 206,30 | 238,95 | 272,57 | 306,18 | 339,46 | 486,33 | 522,12 | 557,91 |
| 1010 | 223,44 | 241,15 | 277,56 | 277,56 | 352,53 | 389,58 | 564,75 | 605,82 | 646,58 |
| 1210 | 256,38 | 276,31 | 316,46 | 316,46 | 399,20 | 439,68 | 643,15 | 689,54 | 735,58 |