ERVR Regolatori rettangolari a portata variabile con servomotore

Descrizione

Questi regolatori sono utilizzati per il controllo ed il mantenimento della
quantita’ dell’aria negli impianti a portata variabile.

Note

Per una corretta lettura delle pressioni e per una tolleranza di portata del 5%, bisogna prevedere a monte un tratto di canale rettilineo avente la stessa dimensione del regolatore e pari a 2/3 volte la dimensione della base. in caso contrario, la portata potra’ subire variazioni tra il 10% e il 20% rispetto al valore calibrato.

Caratteristiche

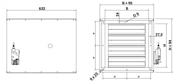
-Involucro in lamiera d’acciaio zincato;
-Sonda di Δp dinamico per la misura ed il
mantenimento della portata in funzione della richiesta dell’ambiente;
-Regolatore di portata fornito con motore Belimo LMV-D3MP.
-Serranda di regolazione a tenuta in acciaio zincato con guarnizioni laterali e longitudinali;
-Campo di funzionamento da 20 a 1000 Pa;
-Regolazione e controllo della portata tramite motoregolatore linearizzato;
-Prove del rumore autogenerato ed irradiato secondo le normative UNI EN 25135 e ISO 3741.
-Regolatore di portata VAV-Compact, AC/DC 24 V, MP-Bus, IP54
LMV-D3-MP (5Nm) (STANDARD)

Modelli

ERVR singolo involucro.
ERVR-I doppio involucro.

A richiesta

- Regolatore di portata VAV-Compact, AC/DC 24 V, BACnet MS/TP, Modbus RTU, MP-Bus, IP54 LMV-D3-MOD (5Nm)
- Regolatore di portata VAV-Compact, AC/DC 24 V, KNX (S-Mode), IP54
LMV-D3-KNX (5Nm)
- Dimensioni intermedie.

Schema semplice involucro

Schema doppio involucro

Dati di funzionamento e listino prezzi

In fase d'ordine indicare la portata aria minima e massima da programmare.

Modello Portata aria minima Portata aria massima ERVR singolo involucro. Segnale di controllo 2...10V ERVR singolo involucro. Segnale di controllo 0...10V ERVR-I doppio involucro. Segnale di controllo 2...10V ERVR-I doppio involucro. Segnale di controllo 0...10V
B mm H mm m3/h m3/h euro euro euro euro
200 110 160 790 613,72 613,72 710,15 710,15
400 110 315 1580 662,23 662,23 778,06 778,06
600 110 475 2375 710,73 710,73 845,96 845,96
400 210 605 3040 705,83 705,83 839,10 839,10
600 210 905 4540 758,50 758,50 912,84 912,84
800 210 1210 6040 807,40 807,40 981,29 981,29
600 310 1340 6710 804,53 804,53 977,29 977,29
800 310 1785 8915 857,58 857,58 1051,55 1051,55
1000 310 2230 11160 908,59 908,59 1122,97 1122,97
600 410 1770 8875 850,58 850,58 1041,75 1041,75
800 410 2360 11790 907,77 907,77 1121,82 1121,82
1000 410 2950 14750 978,16 978,16 1220,35 1220,35
Richiesta informazioni per prodotto

ERVR

Dati
Messaggio